科技赋能安全生产 西缘科技助力长庆油田打造
更新时间:2026-03-26
当前,国家大力推进 “工业互联网 + 安全生产” 深度融合,数字技术赋能传统行业安全管理成为高质量发展重要方向。西安西缘科技有限公司深耕 VR/AR/XR 技术领域十余年,是国内工业 VR 安全实训基地建设领域源头厂家,拥有软件著作权 49 项,服务项目案例超 2300 个。近日,由该公司为中石油长庆油田第三输油处打造的AI+XR 安全实训基地正式投用,标志着陕西省石油石化行业 VR 安全实训建设迈上新台阶。
一、政策引领:数字化安全培训成为行业必然要求
“生命至上、安全第一” 是安全生产工作的根本遵循。新修订的《中华人民共和国安全生产法》明确要求生产经营单位强化从业人员安全生产教育和培训,石油天然气、危险化学品等高危行业被列为重点监管对象。
国家工信部、应急管理部先后印发《“工业互联网 + 安全生产” 行动计划》《元宇宙产业创新发展三年行动计划》,大力支持虚拟仿真、扩展现实(XR)技术在安全培训、应急演练场景应用;应急管理部多次部署强化实操考试能力建设,推动安全培训提质增效。
在政策指引下,传统 “念文件、看 PPT、书面考” 的培训模式已难以适配高危行业安全管理需求,数字化、沉浸式、实操化安全培训成为行业转型重点。
二、行业痛点:传统培训短板凸显 实训模式亟待革新
长庆油田作为我国陆上最大油气田,年产油气当量突破 6800 万吨,作业区域横跨陕、甘、宁、蒙、晋五省区,一线员工多、作业点分散、安全管理难度大。
从行业事故统计来看,高空坠落、机械伤害、触电、有限空间窒息中毒为石油天然气行业主要事故类型,根源在于安全意识薄弱、应急技能不足、培训实效不强。传统培训以理论讲授为主,缺乏真实场景体验,知识留存率低、实操转化弱,无法让员工形成风险感知与应急本能。
打破传统培训局限,构建沉浸式、可重复、零风险的安全实训体系,成为油气行业安全管理的关键举措。
三、破局创新:AI+XR 技术 让安全实训 “身临其境”
西缘科技成立于 2011 年,为国家高新技术企业,具备 VR/AR/XR 软硬件研发、内容制作、整馆交付全链条自主可控能力。2024 年,公司受邀为长庆油田第三输油处建设 AI+XR 安全实训基地,以 **“让事故在虚拟空间先发生一次”** 为核心理念,融合人工智能与扩展现实技术,打造工业级沉浸式安全教育闭环系统,成为国内油气行业安全实训标杆项目。
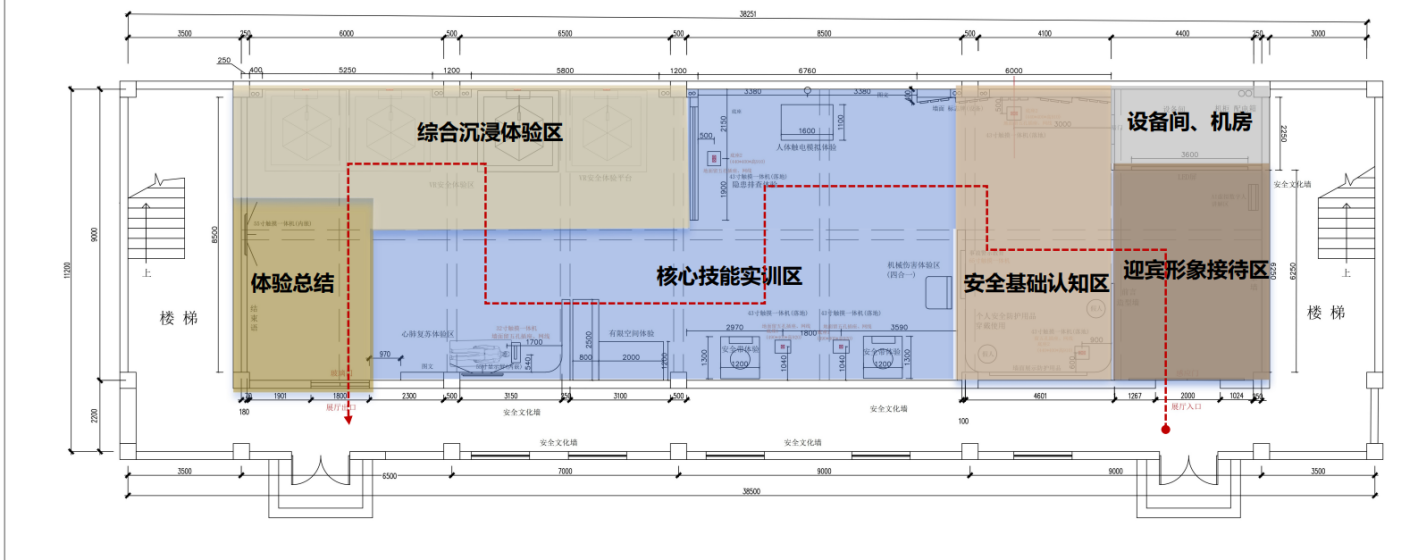
四、基地布局:七大功能区 构建全流程实训闭环
实训基地总面积逾 600 平方米,按照 “认知→体验→训练→考核→反思” 逻辑设计,分为七大功能区:
-
迎宾形象接待区:展示企业安全文化,提供 AI 数字人智能导览服务
-
安全基础认知区:开展安全标志识别、PPE 防护装备规范穿戴学习
-
风险感知与警示区:进行事故警示教育、人体触电安全模拟体验
-
核心技能实操区:实施隐患排查、VR 安全带训练、心肺复苏、有限空间模拟
-
综合沉浸体验区:搭载 VR 安全综合平台,覆盖 9 大危险场景与无人机巡检模拟
-
体验总结留念区:配备签名拍照一体机,生成个性化培训纪念资料
-
楼层文化过道:展陈安全标语与典型案例,营造全域安全文化氛围
五、核心系统:十大自研系统 支撑实训全场景
基地依托西缘科技自主研发的十大核心系统,实现安全培训标准化、智能化、沉浸式:
-
AI 虚拟数字人智能导览系统:支持自然语言对话、语音导航、智能讲解
-
安全标志标识智能学习系统:动态展示、智能出题、即时评分,全覆盖安全标识学习
-
PPE 穿戴模拟培训系统:匹配作业场景,引导规范穿戴流程
-
事故警示教育 VR 再现系统:第一视角还原典型事故,关联行业安全标准
-
人体触电安全模拟体验系统:安全微弱电流模拟,强化安全警示记忆
-
机械伤害综合体验系统:集安全帽抗冲击、安全鞋防砸等四合一体验
-
-
VR 隐患排查训练系统:模拟油田现场隐患场景,自动生成考核报告
-
VR 安全带沉浸体验系统:联动动感平台,模拟高空多类型坠落场景
-
心肺复苏急救培训系统:覆盖 CPR 练习、海姆立克急救、实战考核
-
VR 安全综合体验平台:涵盖 9 大油气高危场景及无人机管线巡检模拟
VR 安全实训 9 大核心场景
-
高空作业安全带标准佩戴与坠落模拟
-
高空坠落(鹰架 / 脚手架)
-
洞口作业坠落
-
攀爬作业坠落
-
索道 / 斜面坠落
-
机械伤害事故
-

-
有限空间窒息体验
-
触电事故模拟
-
无人机操控(油田管线巡检场景)
六、技术支撑:自主知识产权 保障项目专业可靠
本项目核心软件均为西缘科技自主研发,拥有完整知识产权,本次应用核心系统包括:
-
AI 虚拟数字人智能导览管理系统 V1.0
-
VR 沉浸式安全体验教育平台 V2.0
-
VR 高空坠落安全体验训练系统 V1.0
-
VR 有限空间作业安全模拟训练系统 V1.0
-
VR 机械伤害事故仿真体验系统 V1.0
-
VR 触电事故安全模拟体验系统 V1.0
-
工业安全隐患排查智能训练系统 V1.0
-
安全标志标识智能学习考核系统 V1.0
-
PPE 个人防护装备穿戴模拟培训系统 V1.0
-
心肺复苏急救模拟训练考核系统 V1.0
-
VR 安全带高空作业互动体验系统 V1.0
-
事故警示教育案例 VR 再现系统 V1.0
-
安全培训数据管理与分析平台 V1.0
-
XR 多场景安全教育综合管理平台 V1.0
-
无人机操控模拟培训系统(工业版)V1.0
七、团队保障:全链条专业团队 护航项目落地
西缘科技组建 30 余人核心团队,形成研发、设计、施工、运维一体化服务能力:
-
研发团队:深耕 VR/AI 技术,保障系统迭代与技术落地
-
内容团队:由持证安全工程师、行业专家组成,确保实训内容合规专业
-
实施团队:具备整馆交付经验,保障项目高效落地
-
运维团队:提供 7×24 小时响应服务,保障基地长期稳定运行
八、企业实力:2300 + 案例 覆盖多领域安全实训
西缘科技业务遍及全国 28 个省级行政区,累计完成 2300 余个 VR/XR 实训项目,服务覆盖:
-
能源行业:中石油、中石化、煤矿、电力等单位
-
政府司法:应急、教育、检察、公安等部门
-
建筑施工:大型建企、轨道交通等单位
-
消防安全:消防救援、公共安全实训场馆
-
院校机构:300 余所大中专院校安全教育基地
公司在能源安全实训领域形成成熟解决方案,可提供从需求调研、方案设计、内容定制到设备交付、运营培训的一站式服务。
九、结语
以科技守护安全,以创新赋能发展。长庆油田 AI+XR 安全实训基地的建成投用,是陕西本土科技企业助力 “工业互联网 + 安全生产” 国家战略的生动实践。
未来,西缘科技将持续深耕 AI+XR 安全实训领域,以自主核心技术、完善服务体系、丰富落地经验,助力更多能源企业构建数智化安全培训体系,为全国安全生产高质量发展贡献科技力量。